-
Die Ostsee zum Greifen nah
Diese wunderschöne Stadtvilla liegt in einem ruhigen Wohngebiet von Schönberg. Die Ostsee ist ca. 3km entferntLearn More -
Wohnraum der zum Verweilen einlädt
Baujahr 2012 - Das Herzstück der Villa bildet der gemütliche, helle Wohn- und EssbereichKontakt -
Moderne Bäder, die keine Wünsche offen lassen
Helle Bäder mit Fußbodenheizung, Handtuchheizkörpern, sehr großzügiger Dusche und Badewanne bieten alles was das Herz begehrtKontakt -
Herzlich Willkommen!
Der großzügige Eingangsbereich empfängt sie herzlich und bietet ausreichend PlatzKontakt -
Wunderschöne Stadtvilla
Wohnen in einer modernen, energieeffizienten Stadtvilla, die mit ihrem durchdachten Grundriss keine Wünsche offen lässtKontakt
Angebotsbeschreibung
ca. 176 m²
Wohnfläche
1
Carport
581 m²
Grundstück
6
Zimmer
2012
Baujahr
Diese wunderschöne Stadtvilla liegt in einem ruhigen Wohngebiet der Gemeinde Schönberg. Kindergärten, die Schulen und vielen Sportangeboten sind fußläufig zu erreichen, die Ostesee ist ca. 3 km entfernt. Die Stadtvilla wurde 2012 vom Team Massivhaus gebaut und überzeugt als KFW 70-Effizienzhaus, welches modernes Wohnen auf höchstem Niveau bietet. Die Villa erstreckt sich über 2 Vollgeschosse und umfasst insgesamt 6 Zimmer sowie 2 Bäder auf einer Wohnfläche von 176 m². Sie ist ausgestattet mit einer Fußbodenheizung und einem zentralen Be- und Entlüftungssystem mit Wärmerückgewinnung.
Das großzügige Grundstück mit einer Fläche von 581 m² rundet das Angebot perfekt ab.
Der durchdachte Grundriss und die hochwertige Ausstattung dieses Hauses lassen keine Wünsche offen. Die offene Küche ist geschmackvoll gestaltet und verfügt über eine moderne Einbauküche. Die Küche geht in den großzügigen, lichtdurchfluteten Wohn- und Essbereich über, der das Herzstück des traumhaften Hauses bildet. Vom Wohn- und Essbereich hat man einen direkten Zugang auf die südlich ausgerichteten Terrasse mit Blick in den gepflegten Garten. Hier lassen sich wunderbar entspannte Stunden in der Sonne genießen. Für die Abendsonne gibt es eine zweite Terrasse mit nordwestlicher Ausrichtung.
KAUFPREIS
699.000,- EUR
Die Kaufnebenkosten sind, wie üblich, durch den Erwerber zu tragen. Eine Maklercourtage für den Käufer fällt nicht an.
Die Höhepunkte auf einen Blick:
- wunderbar ruhige Lage im Wohngebiet in Schönberg
- 2012 als KfW 70 Energieeffizienzhaus errichtet worden
- optimal durchdachter Grundriss
- modernes Vollbad
- zentrales Be- und Entlüftungssystem mit Wärmerückgewinnung
- Fußbodenheizung
- modernes Gästebadezimmer mit Dusche
- Wohnen wo andere Urlaub machen
- schöner Garten, der viel Raum für Entfaltung bietet
- wunderschön angelegte südliche Terrasse
- weitere kleine Terasse, um die Abendsonne zu genießen
- großzügerger Wohn- und Essbereich zum Wohlfühlen
- moderne Küche
- von drei Seiten einsehbarer Kamin
- alle Wohnräume ohne Dachschrägen
- die Ostsee zum Greifen nah
Das Objekt
Die Stadtvilla liegt in einem ruhigen Wohngebiet ca. 3 km von der Ostsee entfernt. Sie ist mit einem wunderschönen Natursteinwall und einer immergrünen Hecke eingefriedet. Die geschmackvoll angelegte Auffahrt neben dem Haus führt auf das Carport mit angrenzendem Schuppen zu. Das Carport bietet einen geschützten Stellplatz für Ihr Fahrzeug, während der Schuppen Raum für Ihre Gartengeräte bereithält, darüber hinaus ist neben dem Haus Platz für ein weiteres Fahrzeug.
Die Stadtvilla empfängt sie mit einer wunderschönen, überdachten, weißen Eingangstür mit Glaselementen und begrüßt sie in ihrem großzügigen, gefliesten Eingangsbereich des Erdgeschosses. Auf der rechten Seite ist ausreichend Platz für Ihre Garderobe, außerdem finden Sie hier das moderne Gäste-Badezimmer, welches mit einer bodengleichen Dusche und einem Fenster optimal ausgestattet ist. Direkt neben dem Gäste-Badezimmer schließt sich das Gäste- bzw. Arbeitszimmer an.
Direkt gegenüber der Eingangstür liegt der Zugang zum Herzstück der Villa – dem wunderschönen, großzügigen Wohn- und Essbereich. Dieser Bereich ist mit einem Laminatboden ausgestattet, der zu drei Seiten einsehbare Kamin im Zentrum des Raumes sorgt für eine wunderschöne behagliche Atmosphäre. Der Wohn- und Essbereich ist nach Süden ausgerichtet und bietet einen direkten Zugang auf die großzügige Terrasse mit südlicher Ausrichtung.
Der offene Essbereich geht direkt über in die moderne, offene Küche. Ein Tresen verbindet beide Bereiche perfekt miteinander und bietet die Möglichkeit dem Koch gemütlich bei der Arbeit zuzusehen, während man außerdem den Blick in den Garten oder auf den lodernden Kaminofen genießt. Auch der Koch selbst hat beim Kochen den Raum im Blick, da die Kücheninsel perfekt zum Raum ausgerichtet ist. Von der Küche hat man einen Zugang zum Hauswirtschaftsraum. Hier ist die Haustechnik, Lüftungsanlage und Heizung untergebracht, außerdem findet sich noch ausreichend Platz für Waschmaschine, Trockner und weitere Vorräte. Der Hauswirtschaftsraum bietet auch einen Zugang nach draußen, so das Einkäufe bequem vom Auto in die Küche verräumt werden können.
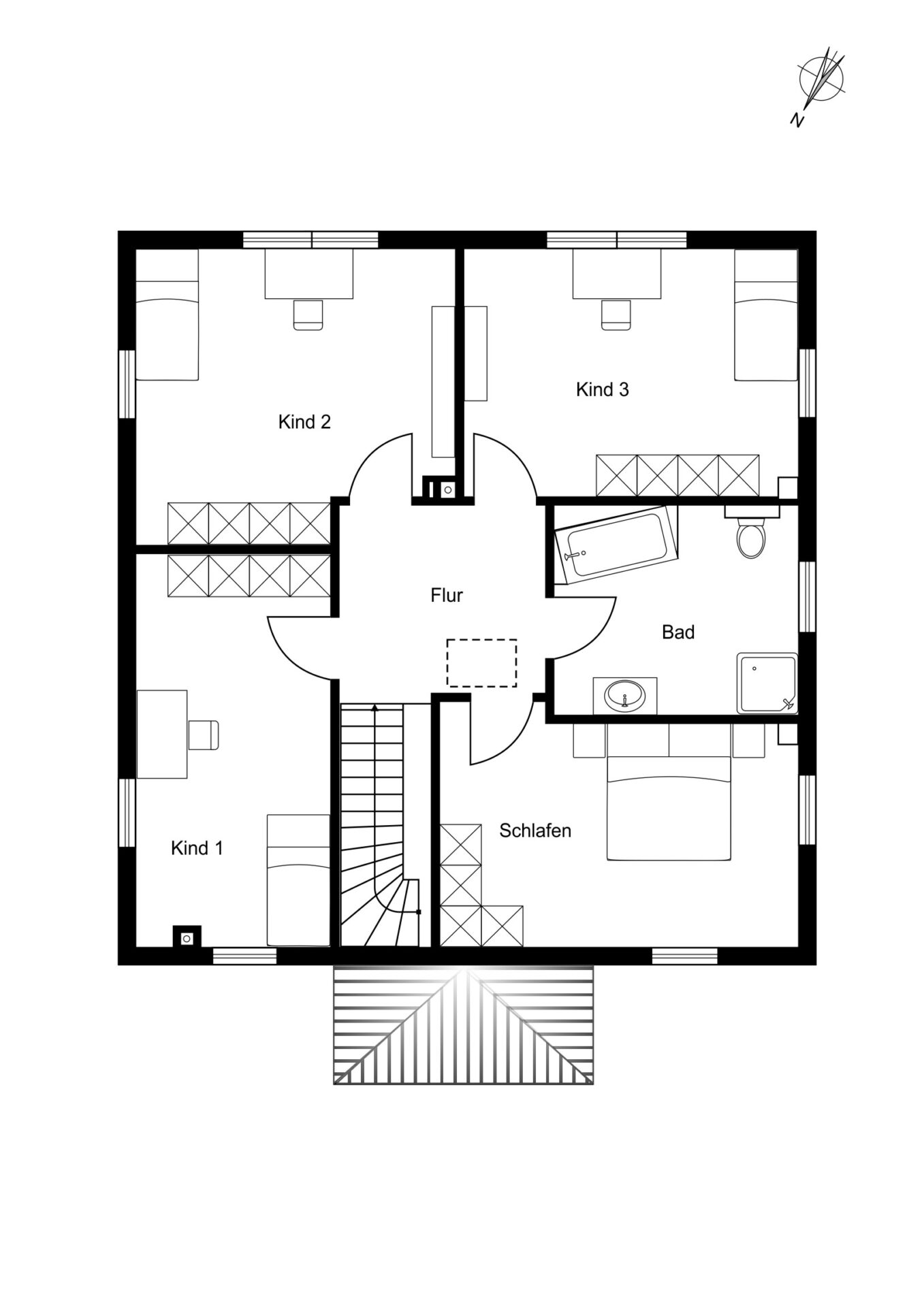
Vom Eingangsbereich führt eine wunderschöne, beleuchtete Holztreppe in das Obergeschoss des Hauses. Der Flur und die Zimmer sind mit einem Laminatboden ausgestattet. Das erste Zimmer auf der rechten Seite wird heute als Elternschlafzimmer genutzt. Der Raum hat c. 16 m² und hat zwei nach Westen ausgerichtete Fenster. Neben dem Schlafzimmer liegt des geräumige Familienbadezimmer. Das Vollbad ist weiß gefliest, verfügt über eine fast bodengleiche Dusche, eine Badewanne und ein Fenster. Ein Handtuch-Heizkörper rundet den Komfort des Raumes perfekt ab.
Neben dem Familienbad ist ein lichtdurchflutetes Kinderzimmer mit ca. 16 m² beheimatet. Es verfügt über zwei große Fenster nach Süden und ein Fenster nach Westen. Direkt daneben ist ein weiteres lichtdurchflutetes Kinderzimmer mit ca. 17 m². Die Fenster dieses Zimmers öffnen den Blick gen Süden und Osten. Das dritte Kinderzimmer des Obergeschosses umfasst ca. 15 m² und hat ebenfalls zwei Fenster mit nördlicher Blickrichtung. Im Obergeschoss zeigt sich der große Vorteil dieser Stadtvilla, denn alle Zimmer haben Wände ohne Schrägen, so dass das Platzangebot wirklich erstklassig ist.
Der gepflegte Garten mit seiner südlichen Terrasse und einer zweiten Terrasse mit nordwestlicher Ausrichtung runden dieses perfekte Gesamtpaket ab. Dieser Wohlfühltraum könnte Ihr neues zu Hause werden.
Kommen Sie und sehen Sie selbst. Dieses wunderschöne Haus bietet den perfekten Raum für Ihre individuellen Bedürfnisse und ist ein wahres Schmuckstück.
Allgemeiner baulicher Zustand
Das Objekt ist noch sehr jung und in einem gepflegten und gut gewarteten Zustand. Die jetzige Eigentümerfamilie hat das Objekt mit geplant und nach ihren Vorstellungen errichten lassen. Es handelt sich dennoch um eine gebrauchte Immobilie, die durch eine Familie bewohnt wurde. Mit dekorative Arbeiten und kleineren dekorativen Ausbesserungen/Instandhaltungen muss auch in diesem Baujahr gerechnet werden.
Angaben zum EnergieBedarf
Art des Energierausweises:
Energiebedarfsausweis
Endenergieverbrauch:
70,02 kwh*a²
Energieeffizienzklasse:
B
wesentlicher Heizenergieträger:
GAS
Baujahr des Hauses:
2012
Lage
Das Objekt befindet sich im Hafergang in Schönberg, ca. 3 km von der Ostsee entfernt, in einem ruhigen Wohngebiet.
Bitte haben Sie Verständnis dafür, das keine eigenmächtigen Besichtigungen ohne Terminabstimmung gewünscht sind. Bitte respektieren Sie die Privatsphäre. Um erste Einblicke in das Objekt zu bekommen, nutzen Sie gerne die „virtuelle Besichtigungen“. Bei einer Kontaktaufnahme sind wir bemüht Ihnen schnellstmöglich einen Termin anzubieten.
- Hafergang, 24217 Schönberg
- (04343) 49191 0
- kontakt@wertxpertise.de
Kontakt
Die Angaben in diesem Angebot basieren auf Eigentümerangaben. Eine Haftung dafür wird ausgeschossen.